James Montana AIA James Montana AIA
CALL US | 203.539.6656

Project Information


  • Client | Din Properties
  • Project Type | Hospitality / QSR
  • Project Size | 2,421 SF
  • Year | 2026


About this project:


Opening a franchise location can be anything but turnkey; there are many hurdles to struggle through, many vested interests to satisfy, and layers of regulations to adhere to. It helps to have an architect in your corner.

We partnered with a local developer looking to bring the critically acclaimed Shah’s Halal Food to Eastern Connecticut. The idyllic seaside town of Groton is set to experience Long Island’s best halal cuisine, with over 200 locations throughout New London and New York.

There was one catch, however. This was our client’s first time working with a franchise. It was also the client’s first time working with an architect. Between navigating the high standards in order to stay on brand, as well as strict deadlines, our client needed an architect with experience in Quick Service Restaurants, or QSRs, for short.

With combined decades of experience, our team got right to work flushing out the interior of the project. We were lucky to work with a pad site, with pre-trenched concrete floors for plumbing fixtures. We tackled the project in a multi-pronged approach. With construction administration experience, our project management team had boots on the ground, 3D scanning the premises with Matterport. Team leadership Savannah Dominguez dove right into the interiors, selecting finishes that were not only on-brand with Shah’s Halal Foods, but more resilient and more cost effective.

She was able to maximize seating, experience, and cost, before turning her attention to the back-of-house, where the franchise test-fit was optimized to what our office sees in the QSR industry.

" This looks amazing! "
- KHUZAIMA, DIN PROPERTIES

The result was a total package, from conception to execution. It took multiple iterations of working with the client to merge his vision with that of the franchise leadership’s, but we’re confident that we were able to bring value without sacrificing quality. The results speak for themselves.

>
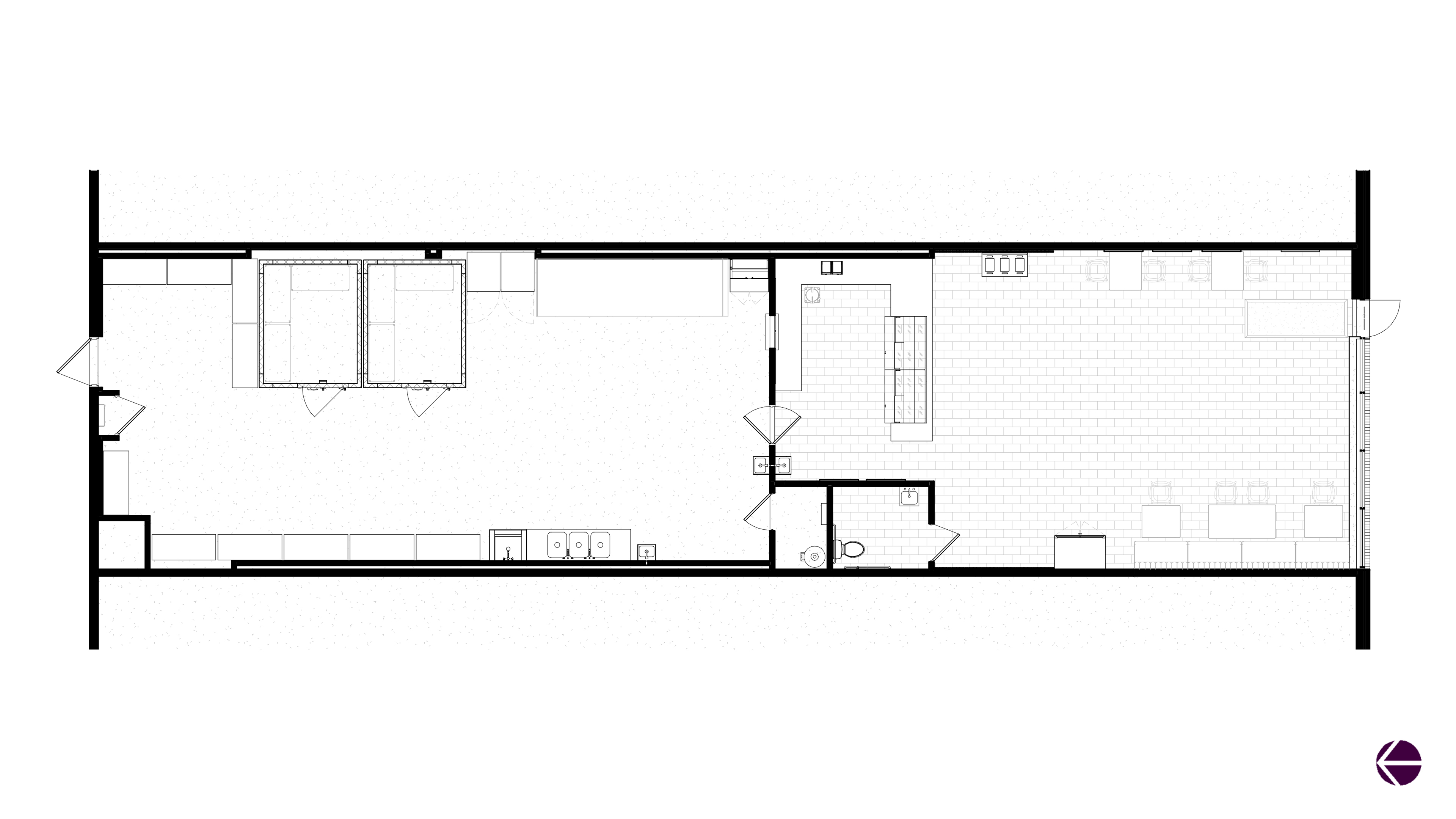
Floor Plan of a Shah's Halal Food in Groton, Connecticut
Site Location at Poquonnock Road, Groton, Connecticut